Система внутреннего электроснабжения требуется для распределения электричества от источника к электрическому оборудованию, розеткам и подключаемым к ним электроприборам. Перед началом электромонтажных работ внутри зданий и сооружений составляется вся необходимая проектная документация в соответствии со СНиП и ГОСТ.
Проектирование внутренних систем электроснабжения основывается на принципе обеспечения бесперебойности питания, правильного распределения нагрузок по фазам и правил безопасности: надежное заземление, защита от короткого замыкания и утечки тока.
Как правило, для любых объектов (жилых домов, коттеджных поселков, квартир, офисов, административных зданий и промышленных предприятий) разрабатывается индивидуальный проект электрики, учитывающий архитектурные особенности каждого здания и пожелания заказчика.
Этапы проектирования
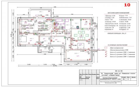
- Анализируется дизайн-проект здания и поэтажный план объекта. Учитывается максимальная величина мощности системы, проектируется расположение розеток, выключателей и осветительных приборов.
- Рассчитывается возможная величина нагрузки на проектируемую электросеть. Расчеты позволят предсказать, как поведет себя сеть при превышении допустимых значений мощности электроэнергии.
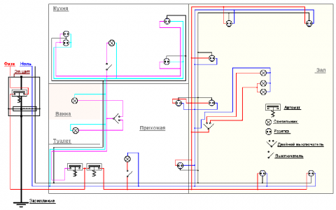
- Создается проект трассы внутренней системы электроснабжения, осуществляется подбор сечений и марок кабелей, определяется расположение цепей силового действия и электрического освещения.
- Для функционирования всей системы и защиты от токов короткого замыкания подбирается оборудование защитно-коммутационного типа.
- Формируется проект щитов электрического типа.


